
| STL | VTR | |
|---|---|---|
| 基本料金(3H) | 82,500(税込) | 82,500(税込) |
| 延長料金(1H) | 27,500(税込) | 27,500(税込) |
※3Hからのご利用でお願いいたします。
・基本利用時間
平日 月曜―金曜のみ 9:00〜19:00
*土・日・祝のご利用、上記時間外のご利用に関しましてはご相談ください。
※ 深夜早朝料金 1H ¥39,600 (税込)
※ロケハンは別途ご料金をいただきますので、お問い合わせください。
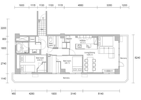
・広さ :86㎡
・天井高:2310㎜
マンションroom309・目黒【ロケ地】
ファミリー住まい設定等の撮影にお勧め。
JR目黒駅近くの、部屋数が多いマンションの1室を撮影にご利用頂けます。
通常難しい深夜の撮影も相談可能。引き幅も取れます。
ご利用可能日…月・火・水・木・金
- 電気量
- 総容量60A
- 駐車場完備
- 専用駐車場はございません。近隣の時間貸駐車場をご利用下さい。
- 住所
-
品川区上大崎
- 最寄駅
- JR「目黒駅」