 
	厳選された素材と個性溢れる空間
このスタジオはマネジメントスペースです
「マネジメントスペース」とは、ピアの所有ではなく、所有者の意向を受けてマネジメント委託されたスペース(住居・飲食店など)です。設備や環境が整っている撮影専用スタジオではありませんので、ロケ地としてご理解ください。各スペースに注意事項及び利用制限がありますのでご注意ください。





















基本料金/5H
STL 1フロア ¥110,000(税込)
VTR 1フロア ¥110,000(税込)
延長料金/1H
STL 1フロア ¥22,000(税込)
VTR 1フロア ¥22,000(税込)
※5時間からのご利用でお願いします。
 ・基本利用時間 9:00〜18:00
上記時間外のご利用に関しましてはご相談ください。
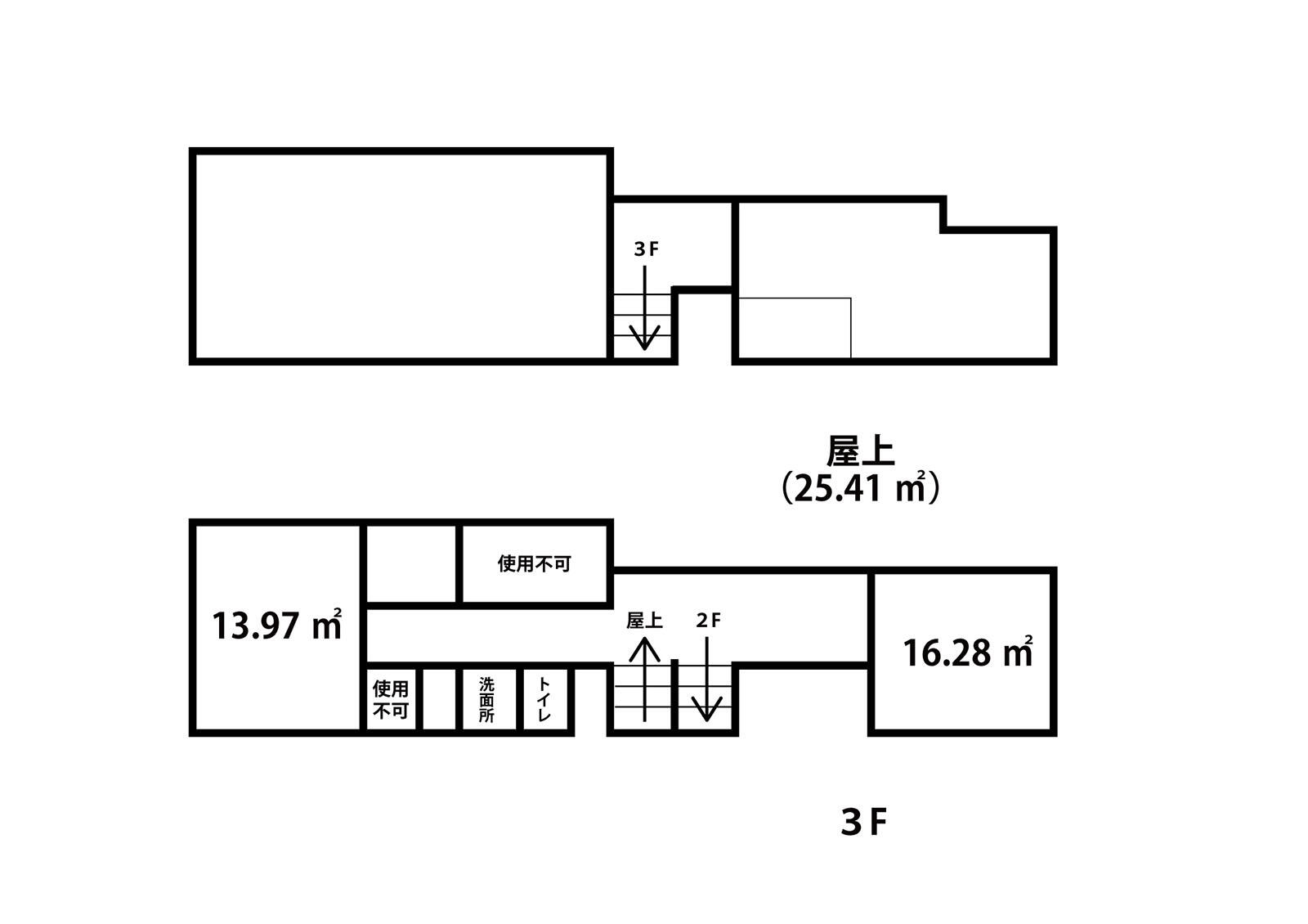
・1F〜3F、屋上使用可能(1F2部屋、2F1部屋、3F2部屋)
 1フロア追加ごとに1H=¥11,000-(税込)の追加料金になります。
※ロケハンは別途ご料金をいただきますので、お問い合せください。
| 駐車場 | 専用駐車場はございません。近隣の時間貸駐車場をご利用ください。 | 
|---|---|
| 住所 | 東京都渋谷区神宮前2丁目 | 
予約・お問合わせ
